| Қол жетімділік күйі: | |
|---|---|
| Саны: | |
Fud05
FAMBITION
Көлік түрі: Тақырыпсыз дизельді тасымалдау бағдарламасы
Резервуар: 5000 литр
Двигатель: Cummins төмен шығарылған турбулярлы дизельді қозғалтқыш, Қытайдың IV шығарылым стандарттарына сәйкес келеді
Шасси дизайны: Жолдан тыс маневрлік және жолдан тыс шиеленіскен шасси
Рульдік жүйе: Толық гидравликалық қуат Тегіс және жауап беру үшін басқару
Тежеу жүйесі: Сахрмен толығымен жабылған көп докты дымқыл тежегіштер (көктемгі қолданылған / гидравликалық шығарылым) дизайны
Кабинаның қауіпсіздігі: FOOPS / ROPS сертификатталған салон
Дисплей және бақылау: Нақты уақыт режимінде жұмыс істейтін жабдықты бақылау және ақаулықтарды жоюға арналған көп функциялы дисплей
Жылдам тіркеу жүйесі: Жедел құрал мен тіркемелерді өзгертуге мүмкіндік беретін әмбебап жылдам ілмек
Құралды ауыстыру тиімділігі: Құрал биржасында 5 минуттан аз
Көп функционалды қолдау: Әртараптандырылған операциялар үшін түрлі функционалды тіркемелермен үйлесімді
| Санат | Техникалық шарғы |
|---|---|
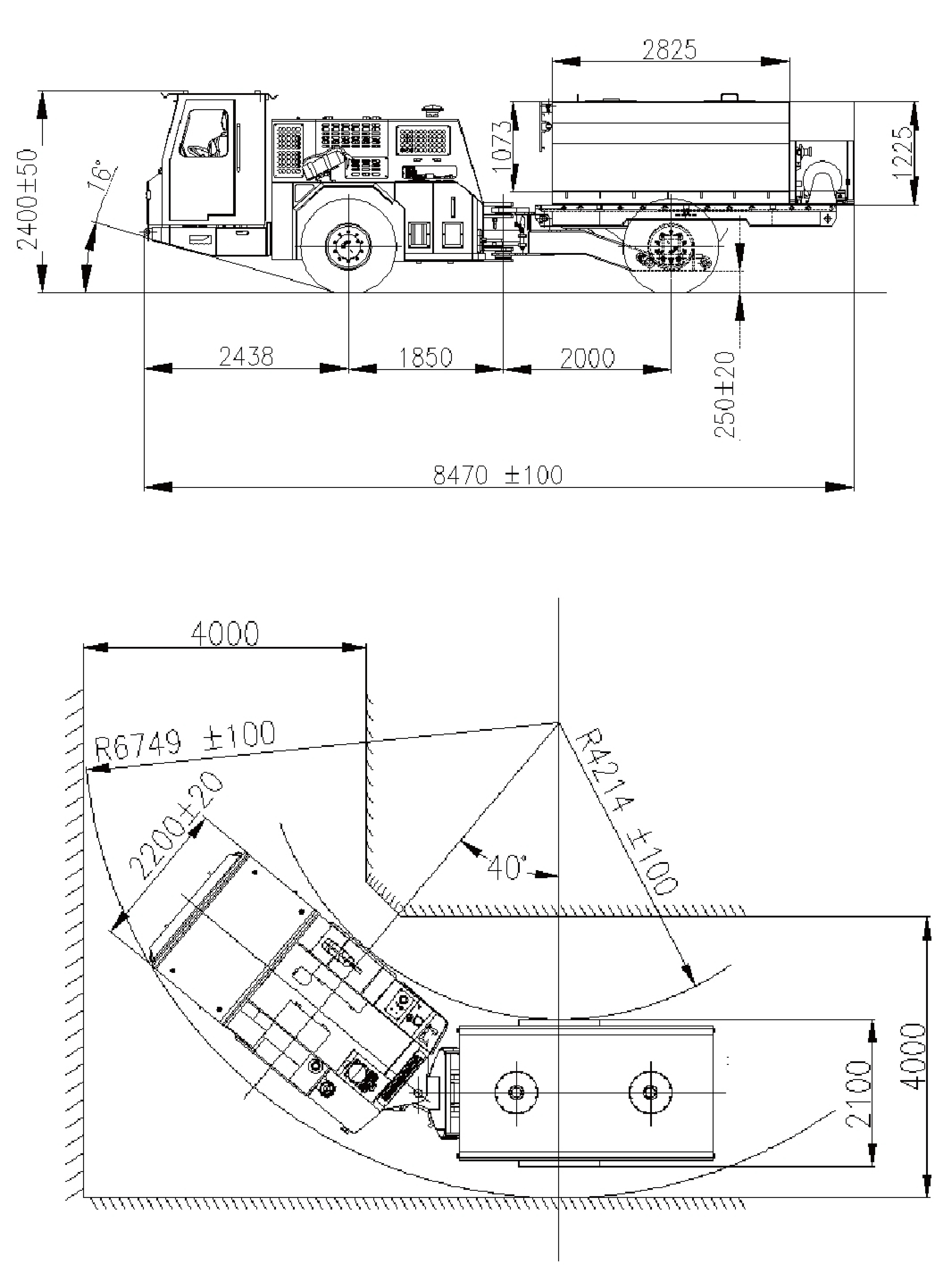
| Орындау | Стуркуляцияның көлемі: 5000 л Жүктеме сыйымдылығы: 4000 кг Жұмыс салмағы: 12,800 кг Резервуарға құйылатын майдың ағымдық мөлшері: 300 л / мин Жабдыққа құю майының ағындық мөлшерлемесі: 90 л / мин Телескопиялық майлы түтікше катушкалар: 5 м |
| Радиусты бұру | Руль бұрышы: ± 40 ° Ішкі бұрылыс радиусы: 4,214 ± 100 мм Сыртқы бұрылыс радиусы: 6,749 ± 100 мм |
| Жылдамдық (деңгей, толық жүктеме) | 1-ші редуктор: 5,0 ± 1 км / сағ 2-ші редуд: 12 ± 1 км / сағ 3-ші беріліс: 24 ± 1 км / сағ |
| Электр жүйесі | Қозғалтқыш: B5.9CS4 Cummins EFI, су салқындатылған, 4-ші деңгей / евро кезеңі IV 129 кВт @ 2200 айн / мин, момент: 760 KN @ 1600 айн / мин Шығару жүйесі: Doc каталитикалық тазартқыш және муфтер Жанармай багының қосымша сыйымдылығы: 140 л SAHR тежеу жүйесі Артқы білік бекітілген, алдыңғы біліктер тербелмелі ± 7 ° Шинаның өлшемі: 12.00 - 20 PR20 |
| Кабина (жабық) | FOPS / ROPS сертификаты Суық кондиционер Екі есік Үш нүктелі байланысқа кіру жүйесі Төмен жиілікті аспалы орындық Көлік құралының резервтік камерасы Екі қабатты кабина Шыны жуғыш машина салоннан тыс Алға бағыттау |
| Шиналар және өлшем | Ұзындығы: 8,470 ± 100 мм Ені: 2200 ± 20 мм Биіктігі: 2,400 ± 50 мм Жерді ресімдеу: 250 ± 20 мм |
| Гидравликалық жүйе | Толығымен гидравликалық басқару Зарядтау клапаны және сервистік тежегіш клапан: Мико Тежегіш аккумуляторы: Леемин Гидравликалық май құятын ыдыс: 200 л |
| Электр жүйесі | Электрлік реле және ажыратқыш: Шнайдер Контроллер: Финляндия Epec Қозғалтқыштың ақауларын анықтау Электр қозғалтқыштарының ауысымын басқару |
| Опциялар | Автоматты түрде өрт сөндіру жүйесі Маутоматикалық орталықтандырылған майлау жүйесі |


Көлік түрі: Тақырыпсыз дизельді тасымалдау бағдарламасы
Резервуар: 5000 литр
Двигатель: Cummins төмен шығарылған турбулярлы дизельді қозғалтқыш, Қытайдың IV шығарылым стандарттарына сәйкес келеді
Шасси дизайны: Жолдан тыс маневрлік және жолдан тыс шиеленіскен шасси
Рульдік жүйе: Толық гидравликалық қуат Тегіс және жауап беру үшін басқару
Тежеу жүйесі: Сахрмен толығымен жабылған көп докты дымқыл тежегіштер (көктемгі қолданылған / гидравликалық шығарылым) дизайны
Кабинаның қауіпсіздігі: FOOPS / ROPS сертификатталған салон
Дисплей және бақылау: Нақты уақыт режимінде жұмыс істейтін жабдықты бақылау және ақаулықтарды жоюға арналған көп функциялы дисплей
Жылдам тіркеу жүйесі: Жедел құрал мен тіркемелерді өзгертуге мүмкіндік беретін әмбебап жылдам ілмек
Құралды ауыстыру тиімділігі: Құрал биржасында 5 минуттан аз
Көп функционалды қолдау: Әртараптандырылған операциялар үшін түрлі функционалды тіркемелермен үйлесімді
| Санат | Техникалық шарғы |
|---|---|
| Орындау | Стуркуляцияның көлемі: 5000 л Жүктеме сыйымдылығы: 4000 кг Жұмыс салмағы: 12,800 кг Резервуарға құйылатын майдың ағымдық мөлшері: 300 л / мин Жабдыққа құю майының ағындық мөлшерлемесі: 90 л / мин Телескопиялық майлы түтікше катушкалар: 5 м |
| Радиусты бұру | Руль бұрышы: ± 40 ° Ішкі бұрылыс радиусы: 4,214 ± 100 мм Сыртқы бұрылыс радиусы: 6,749 ± 100 мм |
| Жылдамдық (деңгей, толық жүктеме) | 1-ші редуктор: 5,0 ± 1 км / сағ 2-ші редуд: 12 ± 1 км / сағ 3-ші беріліс: 24 ± 1 км / сағ |
| Электр жүйесі | Қозғалтқыш: B5.9CS4 Cummins EFI, су салқындатылған, 4-ші деңгей / евро кезеңі IV 129 кВт @ 2200 айн / мин, момент: 760 KN @ 1600 айн / мин Шығару жүйесі: Doc каталитикалық тазартқыш және муфтер Жанармай багының қосымша сыйымдылығы: 140 л SAHR тежеу жүйесі Артқы білік бекітілген, алдыңғы біліктер тербелмелі ± 7 ° Шинаның өлшемі: 12.00 - 20 PR20 |
| Кабина (жабық) | FOPS / ROPS сертификаты Суық кондиционер Екі есік Үш нүктелі байланысқа кіру жүйесі Төмен жиілікті аспалы орындық Көлік құралының резервтік камерасы Екі қабатты кабина Шыны жуғыш машина салоннан тыс Алға бағыттау |
| Шиналар және өлшем | Ұзындығы: 8,470 ± 100 мм Ені: 2200 ± 20 мм Биіктігі: 2,400 ± 50 мм Жерді ресімдеу: 250 ± 20 мм |
| Гидравликалық жүйе | Толығымен гидравликалық басқару Зарядтау клапаны және сервистік тежегіш клапан: Мико Тежегіш аккумуляторы: Леемин Гидравликалық май құятын ыдыс: 200 л |
| Электр жүйесі | Электрлік реле және ажыратқыш: Шнайдер Контроллер: Финляндия Epec Қозғалтқыштың ақауларын анықтау Электр қозғалтқыштарының ауысымын басқару |
| Опциялар | Автоматты түрде өрт сөндіру жүйесі Маутоматикалық орталықтандырылған майлау жүйесі |


Циндао қаласының Лайси экономикалық даму аймағында орналасқан FAMBITION - танымал және мамандандырылған тау-кен трексіз жабдықтарын өндіруші.
Авторлық құқық © 2024 QINGDAO FAMBITION HEAVY MACHINERY CO.,LTD. Барлық құқықтар қорғалған. | Sitemap | Құпиялылық саясаты