| Қол жетімділік күйі: | |
|---|---|
| Саны: | |
FUE05 - ең жоғары жүк қуаттылығы 5 тонна болатын тірексіз жарылғыш көлік құралы. Автокөлік премиум халықаралық компоненттерді, орталық шассиді және толық гидравликалық басқару жүйесін қабылдайды. Сахрды жұмыс істейтін толыққанды көп дискідегі дымқыл тежегіштермен жабдықталған, көлік құралы Cummins аз эмиссияланған қозғалтқыштың аз эмиссияланған қозғалтқышы, Қытайдың IV шығарылым стандарттарына сәйкес келеді. Фопт / роптар сертификатталған салонда нақты уақыт режимінде жабдықты бақылау және ақаулықтарды жою бойынша көп функционалды дисплейді біріктіреді.
Әмбебап жылдам бекіту шасси жүйесі тез өзгерістерді қосады, әртараптандырылған операцияларға арналған бірнеше функционалды тіркемелерді қолдайды. Жылдам өзгерту механизмі бес минут ішінде құралды ауыстыруға мүмкіндік береді.
| Санат | Мәлімет |
|---|---|
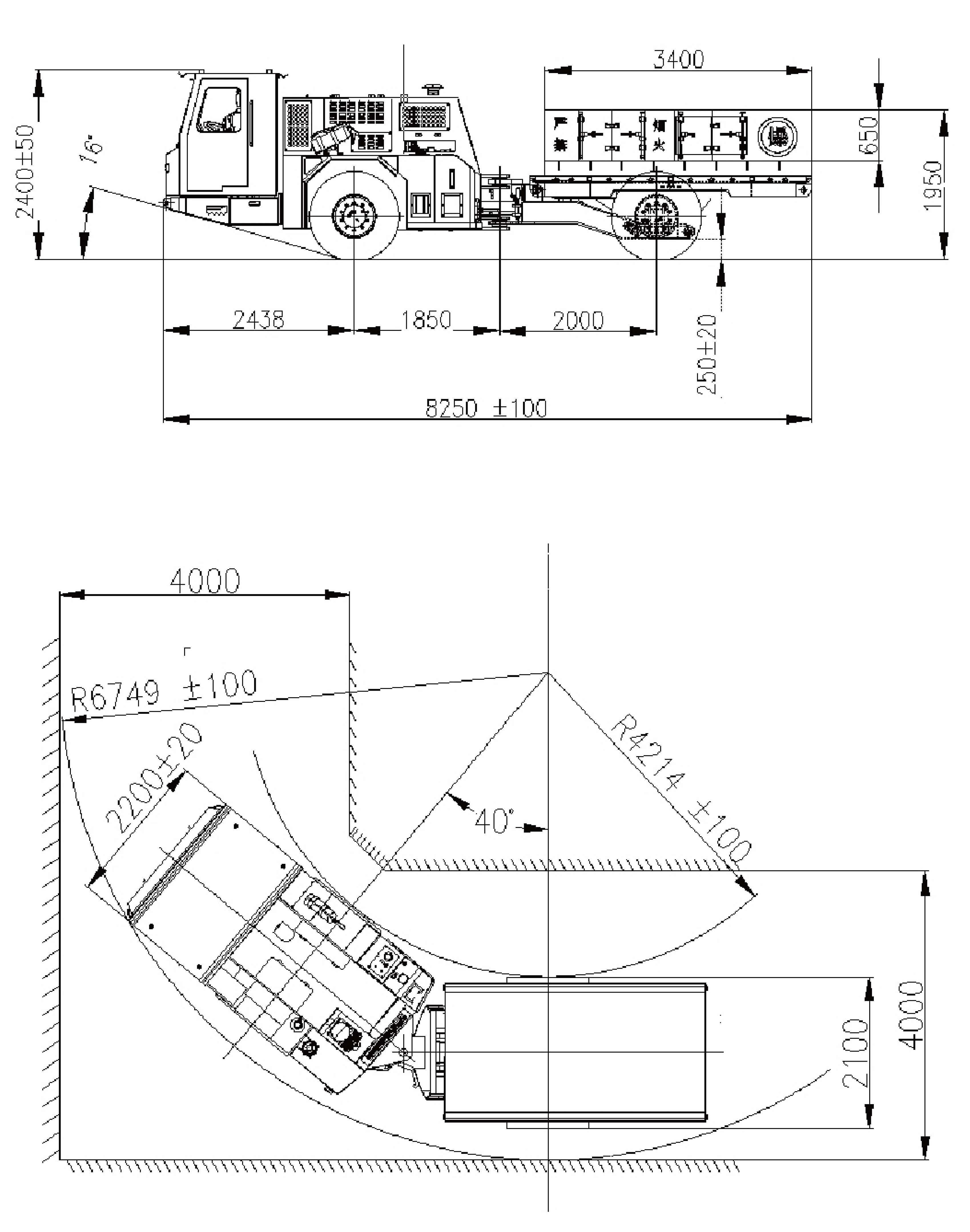
| Орындау | Жүктеме сыйымдылығы: 5000 кг Бөлме өлшемі: 3,200 × 5,500 × 1,800 мм Доқтың ені: 1700 мм Бөліктің есігі: 5 дана Максималды тарту күші: 110N |
| Өлшем | Ұзындығы: 8,250 ± 100 м MWIDTH: 2,200 ± 20 мм Биіктігі: 2,400 ± 50 мм Жерді ресімдеу: 250 ± 20 мм Руль бұрышы: ± 40 ° Ішкі бұрылыс радиусы: 4,214 ± 100 мм Сыртқы бұрылыс радиусы: 6,749 ± 100 мм |
| Жылдамдық (деңгей, толық жүктеме) | 1-ші беріліс: 5 ± 1 км / H2ND редуктары: 12 ± 1 км / сағ 3-ші беріліс: 24 ± 1 км / сағ |
| Электр жүйесі | Қозғалтқыш: B5.9CS Cummins 4ефи, су салқындатылған, 4-ші деңгей, евро кезеңі IV 129 кВт @ 2200 айн / мин, 760 N 760 N @ 1600 айн / мин |
| Шығару жүйесі | Doc каталитикалық тазартқыш және муфтер |
| Жанармай резервуарының сыйымдылығы | 140 л |
| Гидравликалық жүйе | Толығымен гидравликалық басқару Зарядтау клапаны және сервистік тежегіш клапан: Мико Тежегіш аккумуляторы: Леемин (Май қайтару сүзгісі) Гидравликалық май құятын ыдыс: 200 л |
| Электр жүйесі | Электрлік реле және ажыратқыш: Schneide РККРоллер: Финляндия Epec Қозғалтқыштың ақауларын анықтау |
| Кабина (жабық) | FOPS / ROPS сертификаты Суық кондиционер Кабинаға арналған екі есік Алға бағыттау Кабинаға тез жету үшін үш нүктелі байланысқа кіру жүйесі Төмен жиілікті аспалы орындық Көлік құралының резервтік камерасы Екі қабатты кабина Шыны жуғыш машина салоннан тыс |
| Қауіпсіздік | Жыпылықтайды Портативті от қорғауы 1 × 6 кг Түтінді завигациялық жүйе |
| Опциялар | Автоматты түрде өрт сөндіру жүйесі Маутоматикалық орталықтандырылған майлау |


FUE05 - ең жоғары жүк қуаттылығы 5 тонна болатын тірексіз жарылғыш көлік құралы. Автокөлік премиум халықаралық компоненттерді, орталық шассиді және толық гидравликалық басқару жүйесін қабылдайды. Сахрды жұмыс істейтін толыққанды көп дискідегі дымқыл тежегіштермен жабдықталған, көлік құралы Cummins аз эмиссияланған қозғалтқыштың аз эмиссияланған қозғалтқышы, Қытайдың IV шығарылым стандарттарына сәйкес келеді. Фопт / роптар сертификатталған салонда нақты уақыт режимінде жабдықты бақылау және ақаулықтарды жою бойынша көп функционалды дисплейді біріктіреді.
Әмбебап жылдам бекіту шасси жүйесі тез өзгерістерді қосады, әртараптандырылған операцияларға арналған бірнеше функционалды тіркемелерді қолдайды. Жылдам өзгерту механизмі бес минут ішінде құралды ауыстыруға мүмкіндік береді.
| Санат | Мәлімет |
|---|---|
| Орындау | Жүктеме сыйымдылығы: 5000 кг Бөлме өлшемі: 3,200 × 5,500 × 1,800 мм Доқтың ені: 1700 мм Бөліктің есігі: 5 дана Максималды тарту күші: 110N |
| Өлшем | Ұзындығы: 8,250 ± 100 м MWIDTH: 2,200 ± 20 мм Биіктігі: 2,400 ± 50 мм Жерді ресімдеу: 250 ± 20 мм Руль бұрышы: ± 40 ° Ішкі бұрылыс радиусы: 4,214 ± 100 мм Сыртқы бұрылыс радиусы: 6,749 ± 100 мм |
| Жылдамдық (деңгей, толық жүктеме) | 1-ші беріліс: 5 ± 1 км / H2ND редуктары: 12 ± 1 км / сағ 3-ші беріліс: 24 ± 1 км / сағ |
| Электр жүйесі | Қозғалтқыш: B5.9CS Cummins 4ефи, су салқындатылған, 4-ші деңгей, евро кезеңі IV 129 кВт @ 2200 айн / мин, 760 N 760 N @ 1600 айн / мин |
| Шығару жүйесі | Doc каталитикалық тазартқыш және муфтер |
| Жанармай резервуарының сыйымдылығы | 140 л |
| Гидравликалық жүйе | Толығымен гидравликалық басқару Зарядтау клапаны және сервистік тежегіш клапан: Мико Тежегіш аккумуляторы: Леемин (Май қайтару сүзгісі) Гидравликалық май құятын ыдыс: 200 л |
| Электр жүйесі | Электрлік реле және ажыратқыш: Schneide РККРоллер: Финляндия Epec Қозғалтқыштың ақауларын анықтау |
| Кабина (жабық) | FOPS / ROPS сертификаты Суық кондиционер Кабинаға арналған екі есік Алға бағыттау Кабинаға тез жету үшін үш нүктелі байланысқа кіру жүйесі Төмен жиілікті аспалы орындық Көлік құралының резервтік камерасы Екі қабатты кабина Шыны жуғыш машина салоннан тыс |
| Қауіпсіздік | Жыпылықтайды Портативті от қорғауы 1 × 6 кг Түтінді завигациялық жүйе |
| Опциялар | Автоматты түрде өрт сөндіру жүйесі Маутоматикалық орталықтандырылған майлау |


Циндао қаласының Лайси экономикалық даму аймағында орналасқан FAMBITION - танымал және мамандандырылған тау-кен трексіз жабдықтарын өндіруші.
Авторлық құқық © 2024 QINGDAO FAMBITION HEAVY MACHINERY CO.,LTD. Барлық құқықтар қорғалған. | Sitemap | Құпиялылық саясаты