| Қол жетімділік күйі: | |
|---|---|
| Саны: | |
Fud03
FAMBITION
3500 литрлік үлкен сыйымдылық
Бір сапардың тиімділігін едәуір жақсарту үшін ерекше жүктеме сыйымдылығы.
Премиум халықаралық компоненттер
Сенімділік пен беріктік үшін әлемге әйгілі бренд бөліктері салынған.
Орталық жасанды шасси + толық гидравликалық қуатты басқару
Кешенді жерасты орталарындағы ең жақсы маневрлік және жолдан тыс жұмыстар.
Қауіпсіздік тежеудің жетілдірілген жүйесі
Толығымен қоршалған көп докты дымқыл детальшоғыштар (көктемгі қолданылған гидравликалық шығарылым) Максималды тежеу сенімділігі үшін қауіпсіз-қауіпсіз технология.
Күшті және экологиялық таза жұмысат
Cummins аз шығарылған қозғалтқышы Тұрақты қозғалтқышы China System IV Шығарындыларының нормативтері - қоршаған ортаға әсері төмен берік қойылым.
Сертификатталған шкаф / роптар
Жоғары беріктігі жоғары қорғаныс құрылымы оператордың жан-жақты қауіпсіздігін қамтамасыз етеді.
Интеллектуалды көп функционалды дисплей
Нақты уақыттағы жабдықты бақылау және диагностикалық қолдау, ақаулықтарды жою және техникалық қызмет көрсету.
Әмбебап жылдам тіркесті шасси жүйесі
Бір көлік, бірнеше функциялар - Тасымалдау, тиеу, тазалау және басқалар үшін көптеген функцияларды үздіксіз қолдайды.
5 минуттық жылдам құралдың өзгеруі
Индустрия-жетекші жылдам өзгеру механизмі 5 минут ішінде своптарды 5 минут ішінде қосып, жұмыс уақытын және өнімділікті арттырады.
| Санат | Техникалық шарғы |
|---|---|
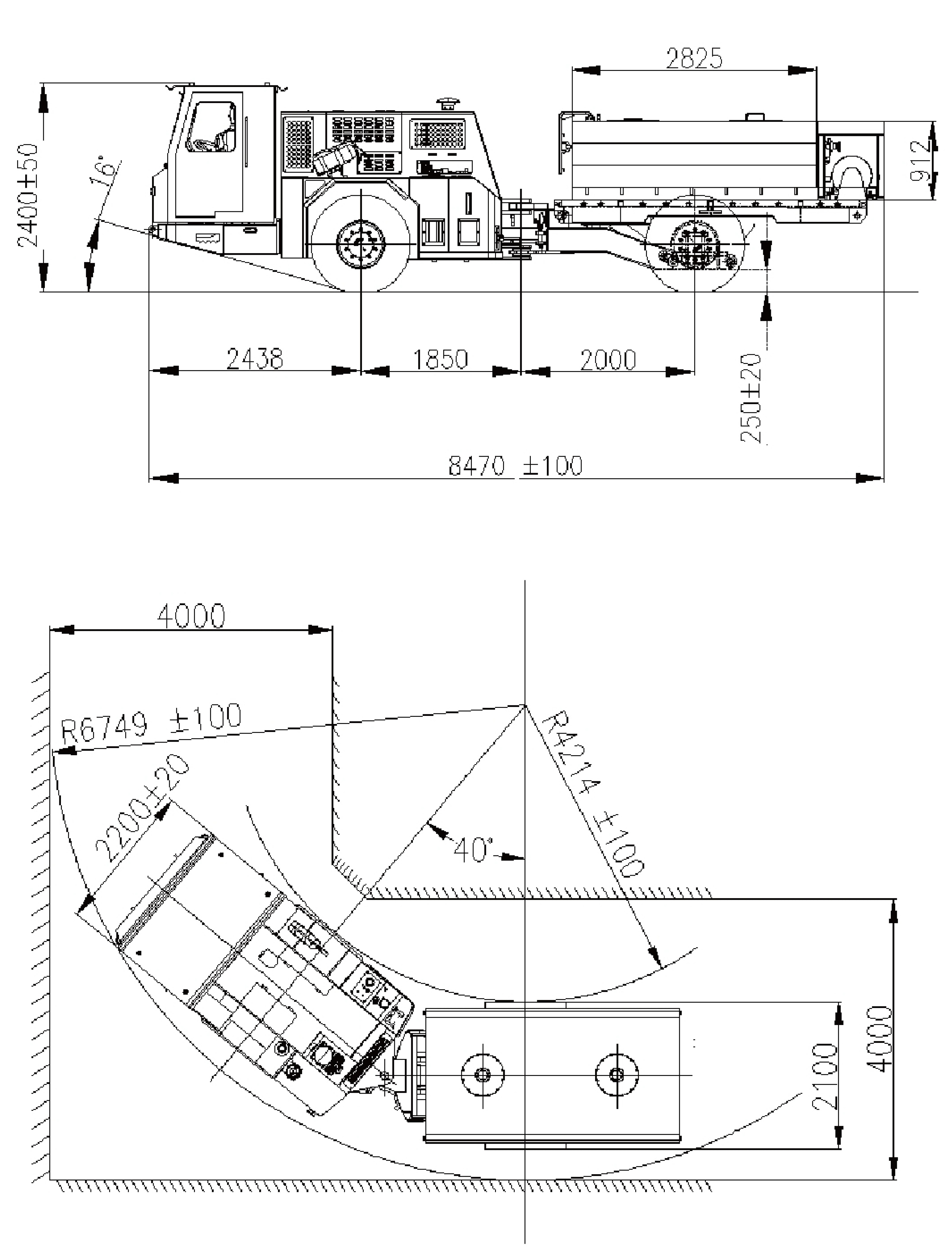
| Орындау | СТАНДАРТТЫҚ РЕТТЕУ: 3,500 л Жүктеме сыйымдылығы: 3000 кг Жұмыс салмағы: 12,800 кг Резервуарға құйылатын майдың ағымдық мөлшері: 300 л / мин Жабдыққа құю майының ағындық мөлшерлемесі: 90 л / мин Телескопиялық майлы түтікше катушкалар: 5 м |
| Радиусты бұру | Руль бұрышы: ± 40 ° Ішкі бұрылыс радиусы: 4,214 ± 100 мм Сыртқы бұрылыс радиусы: 6,749 ± 100 мм |
| Жылдамдық (деңгей, толық жүктеме) | 1-ші редуктор: 5,0 ± 1 км / сағ 2-ші редуд: 12 ± 1 км / сағ 3-ші беріліс: 24 ± 1 км / сағ |
| Электр жүйесі | Қозғалтқыш: B5.9CS4 Cummins EFI, су салқындатылған, 4-ші деңгей / евро кезеңі IV 129 кВт @ 2200 айн / мин, момент: 760 KN @ 1600 айн / мин Шығару жүйесі: Doc каталитикалық тазартқыш және муфтер Жанармай багының қосымша сыйымдылығы: 140 л Электр қозғалтқыштарының ауысымын басқару Күн Артқы білік бекітілген, алдыңғы біліктер тербелмелі ± 7 ° Шинаның өлшемі: 12.00 - 20 PR20 |
| Кабина | FOPS / ROPS сертификаты Суық кондиционер Екі есік Үш нүктелі байланысқа кіру жүйесі Төмен жиілікті аспалы орындық Көлік құралының резервтік камерасы Екі қабатты кабина Алға бағыттау Шыны жуғыш машина салоннан тыс |
| Өлшем | Ұзындығы: 8,470 ± 100 мм Ені: 2200 ± 20 мм Биіктігі: 2,400 ± 50 мм Жерді ресімдеу: 250 ± 20 мм |
| Гидравликалық жүйе | Толығымен гидравликалық басқару Зарядтау клапаны және сервистік тежегіш клапан: Мико Тежегіш аккумуляторы: Леемин Гидравликалық май құятын ыдыс: 130 л (Лейемин майын қайтару сүзгісімен) |
| Электр жүйесі | Электрлік реле және ажыратқыш: Шнайдер Контроллер: Финляндия Epec Қозғалтқыштың ақауларын анықтау |
| Опциялар | Автоматты түрде от қорғау жүйесі Автоматты орталықтандырылған майлау жүйесі Электрлік тартуды басқару5-тонна мұнай ыдысы |


3500 литрлік үлкен сыйымдылық
Бір сапардың тиімділігін едәуір жақсарту үшін ерекше жүктеме сыйымдылығы.
Премиум халықаралық компоненттер
Сенімділік пен беріктік үшін әлемге әйгілі бренд бөліктері салынған.
Орталық жасанды шасси + толық гидравликалық қуатты басқару
Кешенді жерасты орталарындағы ең жақсы маневрлік және жолдан тыс жұмыстар.
Қауіпсіздік тежеудің жетілдірілген жүйесі
Толығымен қоршалған көп докты дымқыл детальшоғыштар (көктемгі қолданылған гидравликалық шығарылым) Максималды тежеу сенімділігі үшін қауіпсіз-қауіпсіз технология.
Күшті және экологиялық таза жұмысат
Cummins аз шығарылған қозғалтқышы Тұрақты қозғалтқышы China System IV Шығарындыларының нормативтері - қоршаған ортаға әсері төмен берік қойылым.
Сертификатталған шкаф / роптар
Жоғары беріктігі жоғары қорғаныс құрылымы оператордың жан-жақты қауіпсіздігін қамтамасыз етеді.
Интеллектуалды көп функционалды дисплей
Нақты уақыттағы жабдықты бақылау және диагностикалық қолдау, ақаулықтарды жою және техникалық қызмет көрсету.
Әмбебап жылдам тіркесті шасси жүйесі
Бір көлік, бірнеше функциялар - Тасымалдау, тиеу, тазалау және басқалар үшін көптеген функцияларды үздіксіз қолдайды.
5 минуттық жылдам құралдың өзгеруі
Индустрия-жетекші жылдам өзгеру механизмі 5 минут ішінде своптарды 5 минут ішінде қосып, жұмыс уақытын және өнімділікті арттырады.
| Санат | Техникалық шарғы |
|---|---|
| Орындау | СТАНДАРТТЫҚ РЕТТЕУ: 3,500 л Жүктеме сыйымдылығы: 3000 кг Жұмыс салмағы: 12,800 кг Резервуарға құйылатын майдың ағымдық мөлшері: 300 л / мин Жабдыққа құю майының ағындық мөлшерлемесі: 90 л / мин Телескопиялық майлы түтікше катушкалар: 5 м |
| Радиусты бұру | Руль бұрышы: ± 40 ° Ішкі бұрылыс радиусы: 4,214 ± 100 мм Сыртқы бұрылыс радиусы: 6,749 ± 100 мм |
| Жылдамдық (деңгей, толық жүктеме) | 1-ші редуктор: 5,0 ± 1 км / сағ 2-ші редуд: 12 ± 1 км / сағ 3-ші беріліс: 24 ± 1 км / сағ |
| Электр жүйесі | Қозғалтқыш: B5.9CS4 Cummins EFI, су салқындатылған, 4-ші деңгей / евро кезеңі IV 129 кВт @ 2200 айн / мин, момент: 760 KN @ 1600 айн / мин Шығару жүйесі: Doc каталитикалық тазартқыш және муфтер Жанармай багының қосымша сыйымдылығы: 140 л Электр қозғалтқыштарының ауысымын басқару Күн Артқы білік бекітілген, алдыңғы біліктер тербелмелі ± 7 ° Шинаның өлшемі: 12.00 - 20 PR20 |
| Кабина | FOPS / ROPS сертификаты Суық кондиционер Екі есік Үш нүктелі байланысқа кіру жүйесі Төмен жиілікті аспалы орындық Көлік құралының резервтік камерасы Екі қабатты кабина Алға бағыттау Шыны жуғыш машина салоннан тыс |
| Өлшем | Ұзындығы: 8,470 ± 100 мм Ені: 2200 ± 20 мм Биіктігі: 2,400 ± 50 мм Жерді ресімдеу: 250 ± 20 мм |
| Гидравликалық жүйе | Толығымен гидравликалық басқару Зарядтау клапаны және сервистік тежегіш клапан: Мико Тежегіш аккумуляторы: Леемин Гидравликалық май құятын ыдыс: 130 л (Лейемин майын қайтару сүзгісімен) |
| Электр жүйесі | Электрлік реле және ажыратқыш: Шнайдер Контроллер: Финляндия Epec Қозғалтқыштың ақауларын анықтау |
| Опциялар | Автоматты түрде от қорғау жүйесі Автоматты орталықтандырылған майлау жүйесі Электрлік тартуды басқару5-тонна мұнай ыдысы |


Циндао қаласының Лайси экономикалық даму аймағында орналасқан FAMBITION - танымал және мамандандырылған тау-кен трексіз жабдықтарын өндіруші.
Авторлық құқық © 2024 QINGDAO FAMBITION HEAVY MACHINERY CO.,LTD. Барлық құқықтар қорғалған. | Sitemap | Құпиялылық саясаты